Espace propriétaire
fr
Vendu
Paris (75018)

9 pièces - 291 m²

9 Pièces - 291 m²

Ref : JCVAP750009337
Découvrir le bien

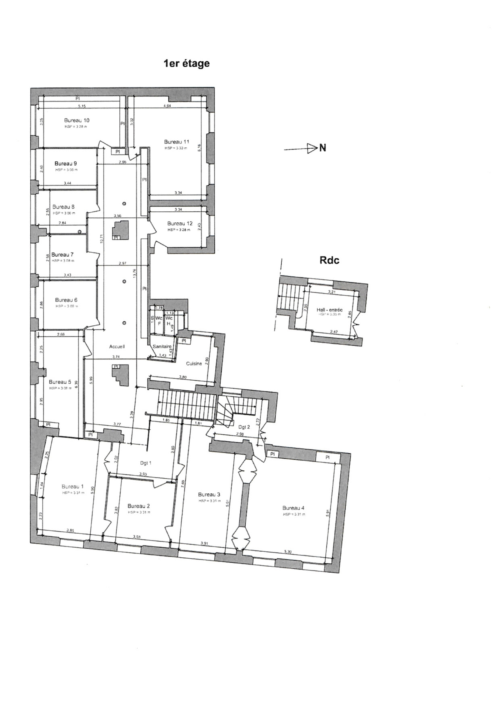
A proximité du métro La Chapelle / Gare du Nord. Nous proposons cette ancienne étude de Notaires dans un immeuble Haussmannien de 1850 environ. Magnifique appartement ou locaux professionnels de 291 m2 modulables. Prestations haut de gamme, alliant le charme de l'ancien et une décoration contemporaine.Très belles parties communes . Ce bien est au 1er étage avec accès par un grand escalier principale du rez de chaussée sous un porche et deux autres entrées possibles dont une avec ascenseur. trois caves agrémentent ces lieux.

TRAD_ZEPHYR_Caracteristique TRAD_ZEPHYR_Valeurs
Code postal 75018
Surface loi Carrez (m²) 291 m²
Nombre de pièces 9
Etage 1
Ascenseur OUI
TRAD_ZEPHYR_Caracteristique TRAD_ZEPHYR_Valeurs
Mode de chauffage Gaz
Type de chauffage Radiateur
Format de chauffage Individuel
Cave OUI
Surface cave (m²) 4
Exposition Sud-Est
Année de construction 1850
Quartier La Chapelle-gare Du Nord
TRAD_ZEPHYR_Caracteristique TRAD_ZEPHYR_Valeurs
Copropriété OUI
Lot n° 1
nombre de lots 35
Quote Part annuelle des charges 1 635 €
plan de sauvegarde NON
statut du syndic pas de procédure en cours
TRAD_ZEPHYR_Caracteristique TRAD_ZEPHYR_Valeurs
Charges 545 €
Taxe foncière annuelle 2 415 €
DPE GES
  • Commerces et santé
  • Loisirs
  • Ecoles
  • Transports
  • Pratique
Contacter pour ce bien
L'agence
Téléphone 01 42 05 84 03
Adresse
1 rue Ordener 75018 Paris

* Champ obligatoire

Les informations recueillies sur ce formulaire sont enregistrées dans un fichier informatisé par La Boite Immo agissant comme Sous-traitant du traitement pour la gestion de la clientèle/prospects de l'Agence / du Réseau qui reste Responsable du Traitement de vos Données personnelles. La base légale du traitement repose sur l'intérêt légitime de l'Agence / du Réseau. Elles sont conservées jusqu'à demande de suppression et sont destinées à l'Agence / au Réseau. Conformément à la loi « informatique et libertés », vous disposez des droits d’accès, de rectification, d’effacement, d’opposition, de limitation et de portabilité de vos données. Vous pouvez retirer votre consentement à tout moment en contactant directement l’Agence / Le Réseau. Consultez le site https://cnil.fr/fr pour plus d’informations sur vos droits. Si vous estimez, après avoir contacté l'Agence / le Réseau, que vos droits « Informatique et Libertés » ne sont pas respectés, vous pouvez adresser une réclamation à la CNIL. Nous vous informons de l’existence de la liste d'opposition au démarchage téléphonique « Bloctel », sur laquelle vous pouvez vous inscrire ici : https://www.bloctel.gouv.fr Dans le cadre de la protection des Données personnelles, nous vous invitons à ne pas inscrire de Données sensibles dans le champ de saisie libre.
Ce site est protégé par reCAPTCHA, les Politiques de Confidentialité et les Conditions d'Utilisation de Google s'appliquent.

Découvrir nos outils