Espace propriétaire
fr

Votre recherche

Vendu
Paris (75018)

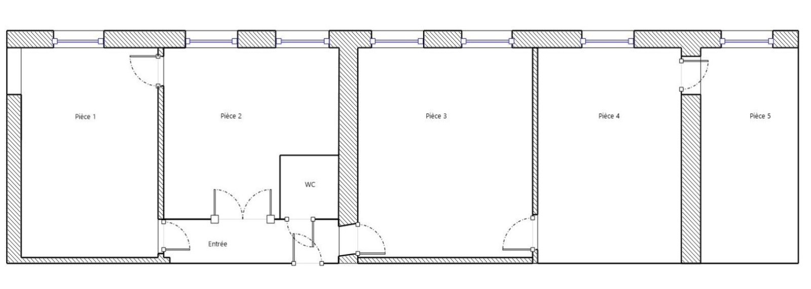
5 pièces - 68,88 m²

2 LOTS : LOCAL PROFESSIONNEL OCCUPE + APPART LIBRE

Ref : DAVAP830009371
Découvrir le bien

Entre le Marché de l'Olive et la Halle Pajol, nous vous proposons 2 lots mitoyens d'une superficie de 66,65m² loi Carrez (et 68,88m² au sol) : un local professionnel d'environ 38m² vendu occupé, loué 850€ par mois charges comprises (fin de bail en juillet 2022) et un appartement libre d'envion 28m² avec confort à installer. Situés au 1er étage d'un immeuble ancien en pierre de Paris, ces biens nécessiteront une rénovation totale. Idéal investisseur

TRAD_ZEPHYR_Caracteristique TRAD_ZEPHYR_Valeurs
Code postal 75018
Surface loi Carrez (m²) 66,65 m²
Nombre de chambre(s) 3
Nombre de pièces 5
Etage 1
Vue sur rue
TRAD_ZEPHYR_Caracteristique TRAD_ZEPHYR_Valeurs
Mode de chauffage Electrique
Type de chauffage Convecteur
Format de chauffage Individuel
Interphone OUI
Cave OUI
Exposition Nord
Quartier Halle Pajol / Marx Dormoy
TRAD_ZEPHYR_Caracteristique TRAD_ZEPHYR_Valeurs
Copropriété OUI
nombre de lots 73
Quote Part annuelle des charges 1 800 €
plan de sauvegarde NON
statut du syndic pas de procédure en cours
TRAD_ZEPHYR_Caracteristique TRAD_ZEPHYR_Valeurs
Charges 150 €
Taxe foncière annuelle 875 €
DPE GES
  • Commerces et santé
  • Loisirs
  • Ecoles
  • Transports
  • Pratique
Contacter pour ce bien
L'agence
Téléphone 01 42 05 84 03
Adresse
1 rue Ordener 75018 Paris

* Champ obligatoire

Les informations recueillies sur ce formulaire sont enregistrées dans un fichier informatisé par La Boite Immo agissant comme Sous-traitant du traitement pour la gestion de la clientèle/prospects de l'Agence / du Réseau qui reste Responsable du Traitement de vos Données personnelles. La base légale du traitement repose sur l'intérêt légitime de l'Agence / du Réseau. Elles sont conservées jusqu'à demande de suppression et sont destinées à l'Agence / au Réseau. Conformément à la loi « informatique et libertés », vous disposez des droits d’accès, de rectification, d’effacement, d’opposition, de limitation et de portabilité de vos données. Vous pouvez retirer votre consentement à tout moment en contactant directement l’Agence / Le Réseau. Consultez le site https://cnil.fr/fr pour plus d’informations sur vos droits. Si vous estimez, après avoir contacté l'Agence / le Réseau, que vos droits « Informatique et Libertés » ne sont pas respectés, vous pouvez adresser une réclamation à la CNIL. Nous vous informons de l’existence de la liste d'opposition au démarchage téléphonique « Bloctel », sur laquelle vous pouvez vous inscrire ici : https://www.bloctel.gouv.fr Dans le cadre de la protection des Données personnelles, nous vous invitons à ne pas inscrire de Données sensibles dans le champ de saisie libre.
Ce site est protégé par reCAPTCHA, les Politiques de Confidentialité et les Conditions d'Utilisation de Google s'appliquent.

Découvrir nos outils