Espace propriétaire
fr

Votre recherche

Vendu
Paris (75018)

3 pièces - 64,52 m²

3 pièces avec Balcon + Cave et Parking

Ref : V830011256
Découvrir le bien

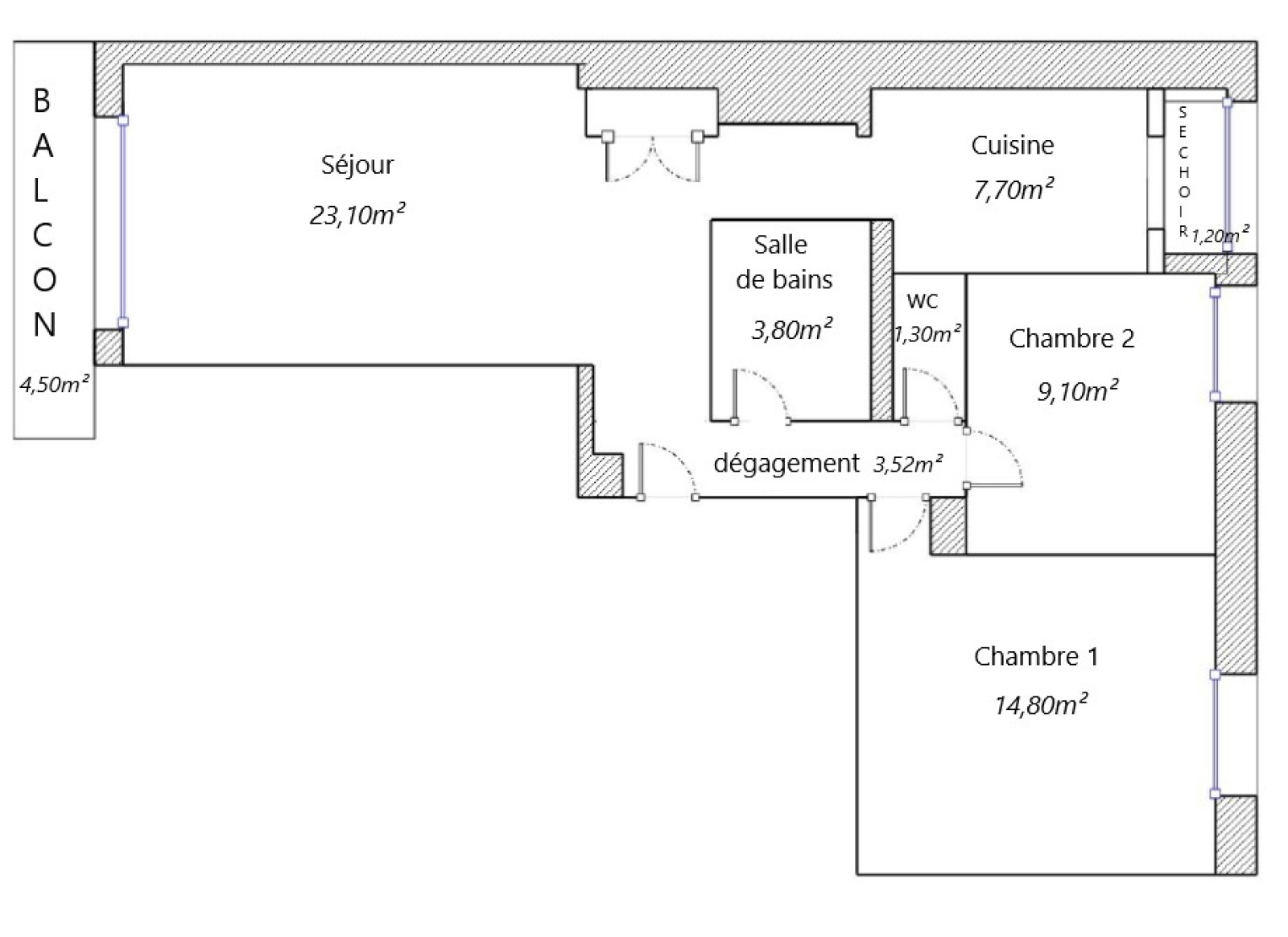
À proximité de la Halle Pajol, entre les stations de métro La Chapelle / Gare du Nord (ligne 2 et RER) et Marx Dormoy (ligne 12), découvrez ce charmant 3 pièces en excellent état. Situé au 4ème étage avec ascenseur d’une résidence bien entretenue, cet appartement lumineux bénéficie d’une double exposition est/ouest, offrant une très belle clarté tout au long de la journée. Il se compose d’une entrée, d’un séjour ouvrant sur un balcon, d’une cuisine séparée entièrement équipée, d’une extension faisant office de séchoir, de 2 chambres dont une avec placard/dressing, d’une salle de bains et de WC indépendants. Aucun travaux à prévoir : il ne vous reste plus qu’à poser vos valises. Une cave et une place de parking sont inclus dans la vente.

TRAD_ZEPHYR_Caracteristique TRAD_ZEPHYR_Valeurs
Code postal 75018
Surface loi Carrez (m²) 63,32 m²
Nombre de chambre(s) 2
Nombre de pièces 3
Etage 4
Ascenseur OUI
Vue dégagée
TRAD_ZEPHYR_Caracteristique TRAD_ZEPHYR_Valeurs
Nb de salle de bains 1
Cuisine Séparée
Type de cuisine Equipée
Mode de chauffage Gaz
Type de chauffage Radiateur
Format de chauffage Collectif
Interphone OUI
Balcon OUI
Cave OUI
Exposition Est-Ouest
Année de construction 1970
TRAD_ZEPHYR_Caracteristique TRAD_ZEPHYR_Valeurs
Copropriété OUI
Lot n° 1
nombre de lots 31
Quote Part annuelle des charges 3 024 €
plan de sauvegarde NON
statut du syndic pas de procédure en cours
TRAD_ZEPHYR_Caracteristique TRAD_ZEPHYR_Valeurs
Les honoraires d'agence seront intégralement à la charge du vendeur  
Charges 252 €
Taxe foncière annuelle 1 327 €
DPE GES
  • Commerces et santé
  • Loisirs
  • Ecoles
  • Transports
  • Pratique
Contacter pour ce bien
L'agence
Téléphone 01 42 05 84 03
Adresse
1 rue Ordener 75018 Paris

* Champ obligatoire

Les informations recueillies sur ce formulaire sont enregistrées dans un fichier informatisé par La Boite Immo agissant comme Sous-traitant du traitement pour la gestion de la clientèle/prospects de l'Agence / du Réseau qui reste Responsable du Traitement de vos Données personnelles. La base légale du traitement repose sur l'intérêt légitime de l'Agence / du Réseau. Elles sont conservées jusqu'à demande de suppression et sont destinées à l'Agence / au Réseau. Conformément à la loi « informatique et libertés », vous disposez des droits d’accès, de rectification, d’effacement, d’opposition, de limitation et de portabilité de vos données. Vous pouvez retirer votre consentement à tout moment en contactant directement l’Agence / Le Réseau. Consultez le site https://cnil.fr/fr pour plus d’informations sur vos droits. Si vous estimez, après avoir contacté l'Agence / le Réseau, que vos droits « Informatique et Libertés » ne sont pas respectés, vous pouvez adresser une réclamation à la CNIL. Nous vous informons de l’existence de la liste d'opposition au démarchage téléphonique « Bloctel », sur laquelle vous pouvez vous inscrire ici : https://www.bloctel.gouv.fr Dans le cadre de la protection des Données personnelles, nous vous invitons à ne pas inscrire de Données sensibles dans le champ de saisie libre.
Ce site est protégé par reCAPTCHA, les Politiques de Confidentialité et les Conditions d'Utilisation de Google s'appliquent.

Découvrir nos outils