Espace propriétaire
fr
Vendu
Paris (75018)

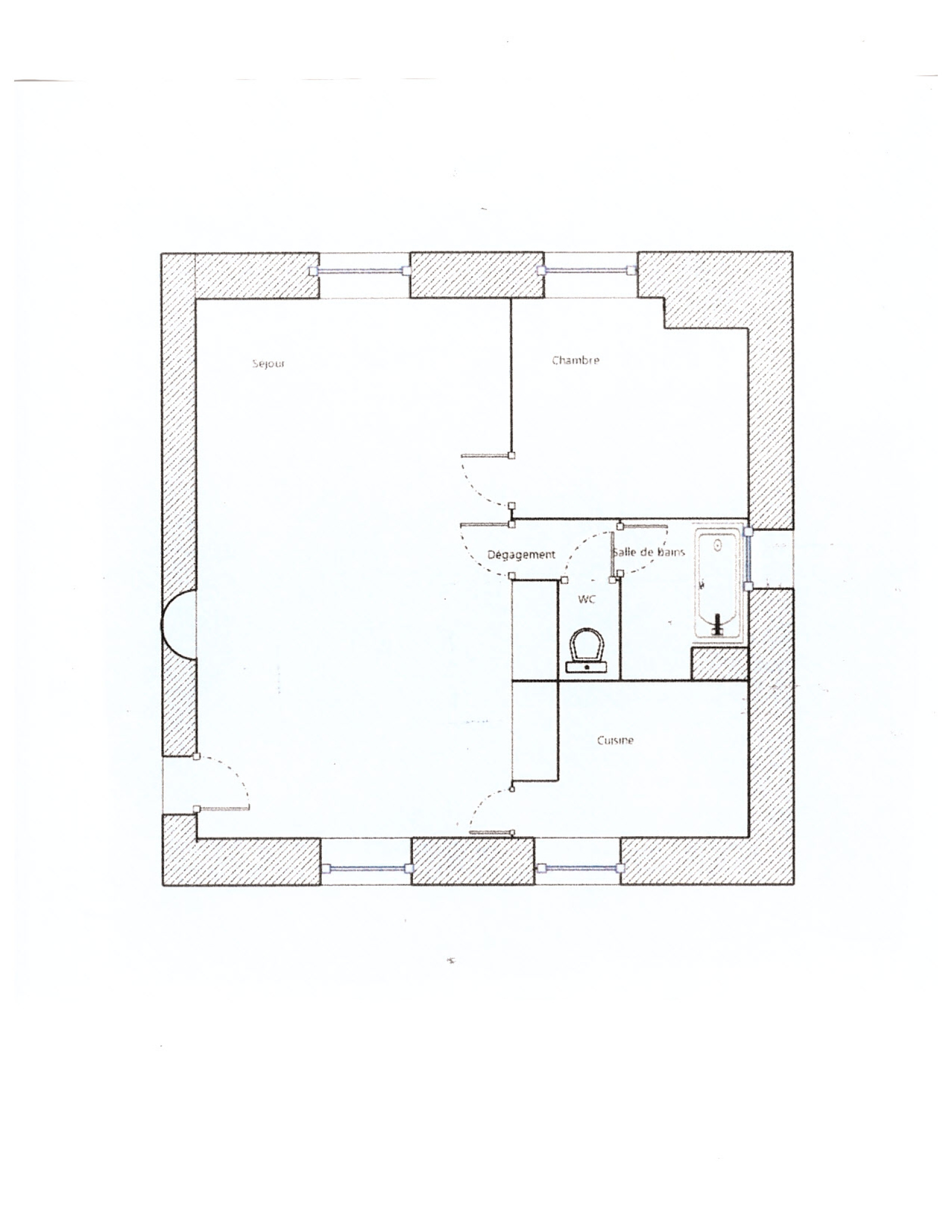
3 pièces - 46,35 m²

2/3 Pièces - 46 M²

Ref : V750010991
Découvrir le bien

Vous cherchez un bien chaleureux et convivial proche du marché de l'Olive ? Ne cherchez plus ! Nous sommes ravis de vous présenter ce beau 2/3 pièces de 46 m² sans perte de place, situé au 1er étage sur une impasse très calme. Ce bien lumineux offre une belle pièce de vie de 28 m², une cuisine fonctionnelle ainsi qu'une salle de bains et W.C. séparés. Il conviendra parfaitement à un couple ou une personne seule en quête de confort et de praticité. Vous pourrez profiter de tous les avantages de la vie citadine tout en profitant de la proximité de commerces de proximité, de marchés locaux et d'espaces verts. Contactez-nous dès maintenant pour organiser une visite et découvrir votre futur chez-vous.

TRAD_ZEPHYR_Caracteristique TRAD_ZEPHYR_Valeurs
Code postal 75018
Surface loi Carrez (m²) 45 m²
Nombre de chambre(s) 1
Nombre de pièces 3
Etage 1
Ascenseur NON
Vue Sur cour
TRAD_ZEPHYR_Caracteristique TRAD_ZEPHYR_Valeurs
Nb de salle de bains 1
Cuisine Séparée
Type de cuisine SEMI-EQUIPEE
Mode de chauffage Electrique
Type de chauffage Convecteur
Format de chauffage Individuel
Cave NON
Exposition Est-Ouest
Année de construction 1850
TRAD_ZEPHYR_Caracteristique TRAD_ZEPHYR_Valeurs
Copropriété OUI
Lot n° 1
nombre de lots 7
Quote Part annuelle des charges 1 368 €
plan de sauvegarde NON
statut du syndic pas de procédure en cours
TRAD_ZEPHYR_Caracteristique TRAD_ZEPHYR_Valeurs
Charges 114 €
Taxe foncière annuelle 951 €
DPE GES
  • Commerces et santé
  • Loisirs
  • Ecoles
  • Transports
  • Pratique
Contacter pour ce bien
L'agence
Téléphone 01 42 05 84 03
Adresse
1 rue Ordener 75018 Paris

* Champ obligatoire

Les informations recueillies sur ce formulaire sont enregistrées dans un fichier informatisé par La Boite Immo agissant comme Sous-traitant du traitement pour la gestion de la clientèle/prospects de l'Agence / du Réseau qui reste Responsable du Traitement de vos Données personnelles. La base légale du traitement repose sur l'intérêt légitime de l'Agence / du Réseau. Elles sont conservées jusqu'à demande de suppression et sont destinées à l'Agence / au Réseau. Conformément à la loi « informatique et libertés », vous disposez des droits d’accès, de rectification, d’effacement, d’opposition, de limitation et de portabilité de vos données. Vous pouvez retirer votre consentement à tout moment en contactant directement l’Agence / Le Réseau. Consultez le site https://cnil.fr/fr pour plus d’informations sur vos droits. Si vous estimez, après avoir contacté l'Agence / le Réseau, que vos droits « Informatique et Libertés » ne sont pas respectés, vous pouvez adresser une réclamation à la CNIL. Nous vous informons de l’existence de la liste d'opposition au démarchage téléphonique « Bloctel », sur laquelle vous pouvez vous inscrire ici : https://www.bloctel.gouv.fr Dans le cadre de la protection des Données personnelles, nous vous invitons à ne pas inscrire de Données sensibles dans le champ de saisie libre.
Ce site est protégé par reCAPTCHA, les Politiques de Confidentialité et les Conditions d'Utilisation de Google s'appliquent.

Découvrir nos outils