Espace propriétaire
fr
Exclusivité
Paris (75018)

2 pièces - 28,80 m²

2 Pièces - 29 M²

189 000 €
Ref : V750011550
Découvrir le bien

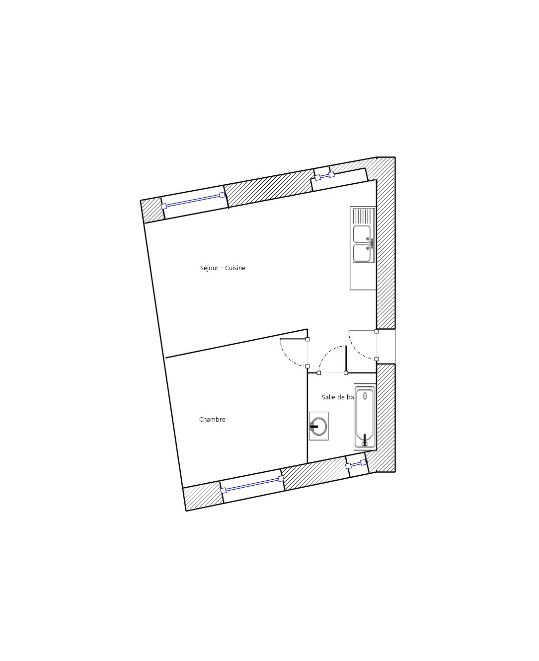
Rue Ordener. Au sein d'un très bel immeuble en Pierre de Taille de standing bien entretenu. Nous avons le plaisir de vous présenter ce très charmant deux pièces de 29 m², situé au rez de chaussée. Au calme sur cour , ce bien se compose comme suit : Une belle pièce principale avec cuisine ouverte, une chambre et une salle d'eau avec WC. Fenêtres double vitrage, chauffage individuel électrique. Une cave saine complète ce bien, racks à vélos dans la cour. À deux pas du Métro Marcadet-Poissonniers Ligne 12 et 4.

TRAD_ZEPHYR_Caracteristique TRAD_ZEPHYR_Valeurs
Code postal 75018
Surface loi Carrez (m²) 27,80 m²
Nombre de chambre(s) 1
Nombre de pièces 2
Ascenseur NON
TRAD_ZEPHYR_Caracteristique TRAD_ZEPHYR_Valeurs
Nb de salle de bains 1
Cuisine Américaine
Type de cuisine SEMI-EQUIPEE
Mode de chauffage Electrique
Type de chauffage Radiateur
Format de chauffage Individuel
Cave OUI
Surface cave (m²) 1
Exposition Nord-Sud
Année de construction 1900
TRAD_ZEPHYR_Caracteristique TRAD_ZEPHYR_Valeurs
Copropriété OUI
Lot n° 1
nombre de lots 20
Quote Part annuelle des charges 852 €
plan de sauvegarde NON
statut du syndic pas de procédure en cours
TRAD_ZEPHYR_Caracteristique TRAD_ZEPHYR_Valeurs
Prix de vente honoraires TTC inclus 189 000 €
Prix de vente honoraires TTC exclus 179 000 €
Honoraires TTC à la charge acquéreur 5,59 %
Charges 71 €
Taxe foncière annuelle 433 €
DPE GES
  • Commerces et santé
  • Loisirs
  • Ecoles
  • Transports
  • Pratique
Contacter pour ce bien
L'agence
Téléphone 01 42 05 84 03
Adresse
1 rue Ordener 75018 Paris

* Champ obligatoire

Les informations recueillies sur ce formulaire sont enregistrées dans un fichier informatisé par La Boite Immo agissant comme Sous-traitant du traitement pour la gestion de la clientèle/prospects de l'Agence / du Réseau qui reste Responsable du Traitement de vos Données personnelles. La base légale du traitement repose sur l'intérêt légitime de l'Agence / du Réseau. Elles sont conservées jusqu'à demande de suppression et sont destinées à l'Agence / au Réseau. Conformément à la loi « informatique et libertés », vous disposez des droits d’accès, de rectification, d’effacement, d’opposition, de limitation et de portabilité de vos données. Vous pouvez retirer votre consentement à tout moment en contactant directement l’Agence / Le Réseau. Consultez le site https://cnil.fr/fr pour plus d’informations sur vos droits. Si vous estimez, après avoir contacté l'Agence / le Réseau, que vos droits « Informatique et Libertés » ne sont pas respectés, vous pouvez adresser une réclamation à la CNIL. Nous vous informons de l’existence de la liste d'opposition au démarchage téléphonique « Bloctel », sur laquelle vous pouvez vous inscrire ici : https://www.bloctel.gouv.fr Dans le cadre de la protection des Données personnelles, nous vous invitons à ne pas inscrire de Données sensibles dans le champ de saisie libre.
Ce site est protégé par reCAPTCHA, les Politiques de Confidentialité et les Conditions d'Utilisation de Google s'appliquent.

Découvrir nos outils